Am südlichen Rand des historischen Dorfkerns von Eschenbach / Luzern liegt die Dali-Liegenschaft. Sie besteht aus einem Wohnhaus – dem Dalihaus – aus der ersten Hälfte des 18. Jahrhunderts und einer Scheune, welche 1912 eine kleinere ersetzte. Die bäuerliche Nutzung ist 1964 eingestellt worden.
Gemäss der «Bauhistorischen Analyse Unterdorf» durch S. Möri ist das Dalihaus – benannt nach einem alten Familien-Geschlecht der Dali – vermutlich in fünf Phasen verändert worden. Die erste wichtige Neuerung war der Anbau der Stallscheune an der Westfassade im 19. Jahrhundert. In den 1950er-Jahren folgte der Ersatz durch eine Wohnhauserweiterung und die Verlegung des Hauseingangs ab der Unterdorfstrasse an die Südfassade. Der neue Zugang wurde mit einer Aussentreppe ins 1. Obergeschoss komplettiert. 1980 wurden die Wohnungen, die Fassade und der Dachstock saniert, ohne die historische Substanz weiter zu erhalten.
Das Dalihaus ist kein klassisches Bauernhaus, wie sie häufig im Luzerner Seetal zu finden sind. Wohl gehörte der dazu gehörige Landwirtschaftsbetrieb zum Zisterzienserinnen-Kloster Eschenbach. Der Bau diente damals wahrscheinlich als Gesindehaus, was den architektonisch zurückhaltenden Ausdruck des Eingangs über die Nordseite erklären würde. Er passt sowohl von seiner Lage als auch von seiner Gestaltung nicht zur markanten, bedingt repräsentativen Rössliplatz-Fassade des Hauses. Der Adressierung wurde in der Transformation vom Gesindehaus zum Bauernhaus nie die nötige Beachtung geschenkt.
In der neuen Dalihof-Liegenschaft werden alle 11 Wohnungen über den Hofraum erschlossen. Das gibt dem Aussenraum eine neue Bedeutung, die für das ganze Quartier zum Ort der Begegnung wird.
Die zwei im Obergeschoss liegenden Dalihaus-Wohnungen, sowie die beiden Wohnungen im Anbau werden über eine gut sichtbare Aussentreppe, welche zwischen beide Volumen geschoben ist, erschlossen. Die Treppe verbindet die unterschiedlichen Geschosshöhen des Dalihauses und des Anbaus. Der neue Zugang stellt eine wichtige Klärung bezüglich Adressierung der historischen Bausubstanz dar. Durch den Abbruch des Anbaus und der neuen Aussenerschliessung, welche nur über den Sockel mit dem Dalihaus verbunden ist, wird die beinahe quadratische Grundrissform des Hauses von aussen lesbar. Die Treppenanlage ist gegen Norden und Süden mit vertikalen Lisenen versehen. Diese dienen als Absturzsicherung, schützen subtil vor Einblicken und verbinden architektonisch den Anbau mit dem Dalihaus.
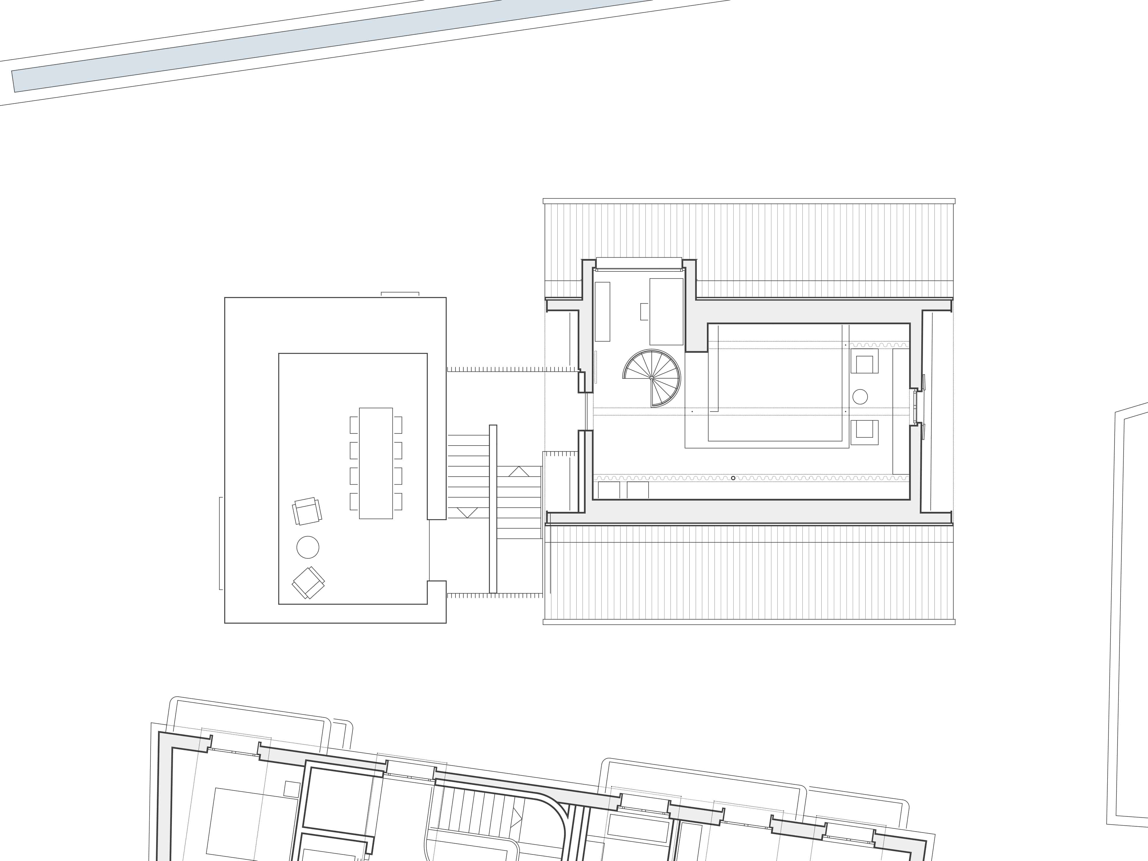
Der Anbau steht dreiseitig auskragend auf einem Sockelgeschoss und ist mit der vertikalen Erschliessung vom Dalihaus getrennt. In ihm sind zwei kleine 1 1/2-Zimmer-Wohnungen vorgesehen. Über den beiden Wohnungen befindet sich ein Aussenraum, welcher von allen Parteien des Dalihauses genutzt werden kann. Die Aussenhaut des Veloraums ist als Relief-Sichtbetonsockel geplant, der eine formale horizontale Verbindung mit dem Sockel des Dalihauses schafft. Ab dem Sockelgeschoss ist die Fassade mit Welleternit-Platten bekleidet, in Anlehnung an die Form der halbrunden Schindeln des Dalihauses.
Die drei Wohnungen im Dalihaus werden innen und aussen saniert. Wie bereits vor der Sanierung in den 50er-Jahren prägen Holz-Schindeln ab dem Sockelgeschoss das neue äussere Erscheinungsbild. Der Boden der hier positionierten 1 1/2 Zimmer-Wohnung wird um eine Stufenhöhe abgesetzt um eine angemessene Raumhöhe zu erhalten. Direkt angegliedert ist der charakteristische Kellerraum mit historischem Tonnengewölbe. Die 3 1/2 Zimmer-Wohnung im 1. Obergeschoss bekommt gegen Süden eine Terrasse auf die gesamte Fassadenlänge. Der neue Aussenraum wird an der bestehenden Holzkonstruktion aufgehängt. Bei den Lauben der 3 1/2 Zimmer-Maisonette-Wohnung im 2. Obergeschoss wird die Laubsägeromantik der Absturzsicherungen wieder sichtbar gemacht. Zudem wird ein Teil des Dachgeschosses zu einer offenen Galerie ausgebaut. Das Dachgeschoss vom Dalihaus wird gegen Norden mit einer Kupferlukarne ergänzt. Sie tritt über ihre Materialität architektonisch in einen Dialog mit der Kupferdachlandschaft der neubarocken Kloster- und Pfarrkirche.
Die sechs grosszügigen Wohneinheiten des Ersatzneubaus Scheune, je drei 2 1/2 und 3 1/2 Zimmer-Wohnungen mit Reduit sind über das Tiefparterre zugänglich. Der Neubau ist ein Hybridbau, bestehend aus einem Betonsockel und Betondecken, welche von massiven Innenwänden getragen werden. Ab dem Hochparterre besteht die Fassade aus vorfabrizierten Holzelementen. Der Tiefparterre-Sockel ist gegen den Hof und Chäpeliweg horizontal vierfach gegliedert. Damit wirkt die Höhe der Autoeinstellhalle gegenüber dem Dalihaus mit seinen geringen Raumhöhen ausgewogen. Die beiden Hochparterre Wohnungen werden gegen Süden mit einem ebenerdigen Aussenbereich ergänzt. Die Wohnungen ab Obergeschoss verfügen über je zwei Balkone. Die Fassade ab dem Hochparterre ist mit einer vertikalen Holzlattung verkleidet. Die breite Holzlattung erinnert an die rohe und markante Holzschalung der Scheune. Die vertikalen Holzfassadenlatten sind geschossweise durch die horizontalen Brandüberschläge aus anthraziten Metallprofilen gegliedert. Die Dachflächen des ungleichseitigen Satteldaches sind mit integrierten Solarpaneelen eingedeckt. Die zehn schmalen anthrazitfarbigen Metalllukarnen verfügen über Flachdächer. Sie sind extensiv begrünt und sorgen bei starkem Regen für Retention sowie im Sommer für ein angenehmes Innenraum-Klima. Die Fenstergewände der Wohnungen in Alu Natur sind eine Analogie zu den weissen Gewänden der Dalihaus-Fenster. Ihr Ausdruck ist jedoch roher, was eine Reminiszenz an den Vorgängerbau der Scheune ist.
Die Weiterentwicklung des Dalihauses, der neue Anbau sowie der Ersatzbau Scheune mit dem verbindenden Hofraum führen die Liegenschaft architektonisch und funktional ins 21. Jahrhundert – mit dem nötigen Respekt für ihre Geschichte.
Patrick J. Schnieper
